For enquiries please call 01977 602188

Oldham Library

Library Design Case Study

The challenge

Oldham Library is one of the busiest in the country, serving a diverse population. Originally opened in 2006, it was time for a refresh of the main library ground floor to meet new needs. The brief was to create capacity for pop-up events and exhibition spaces; add at least 32 byod desks and 30 computer desks; offer spaces for engagement activity and 1-1 meetings; and continue to offer a large central library book collection of 40,000 items. It was also desirable to create a better working environment for staff with practical operational solutions that considered storage, workflows and site supervision. A separate part of the contract was to refit the Oldham Library Shop with stock of around 45,000 items and integrate the Tourist Information offer into the same space. The ambitions were clear. Read on to see how we realised them.

A new welcome

The large double-height glazed atrium at the entrance felt both cavernous and confusing, with a medley of offers dominated by a large reception desk installed in 2014 to replace the even larger one the building was originally provided with. Opening the Book cut the counter down in size and moved it to the side so it no longer acts as a barrier to entering the space. This opened up better sightlines to see the routes through to travel further into the building. It also created more space for shop units with close-up product offers to tempt everyone passing. But before you think that’s solved everything, a further requirement was that all the units in the atrium area had to be moveable. The space is successfully used for large events and the target of increasing income from the shop could not be allowed to clash with the popularity of big fairs and dance performances.

Opening the Book worked closely with our manufacturing partner, Astabridge, to design, prototype, test and refine bespoke units. Astabridge specialises in display solutions and their clients include high-end beauty firms creating displays at Selfridges, Heathrow Airport and Harrods. Working in glass and white laminate, we developed custom display cabinets, balancing quality, flexible merchandising and mobility. Everything was agreed with the library staff who manage the shop as they planned their revitalised offer of cards, gifts, crafts, jewellery, prints and unique products from local artists. The quality of both the layout positioning and the individual units can be seen in the photographs. Costs were saved by re-using the existing counter and self-service housing, with Nick Hurst, our skilled joiner, making them look as if they had always fitted there and CV, our graphics partner, wrapping the old turquoise colour scheme in white to match the new look.

A new approach to finding your way round

Oldham Library is a delightful building but it is not easy to know where to go. Opening the Book’s design combined large scale signage on concrete lintels with eye-level stands at key points in the customer journey.

In the main library space we used a more radical and intuitive presentation than lots of directional signs. This is particularly relevant to visitors who are neuro-divergent, those whose first language is not English, and older folk with memory problems. But it actually benefits all customers as there is lots of evidence that most people, whatever their language or mental state, do not read signs.

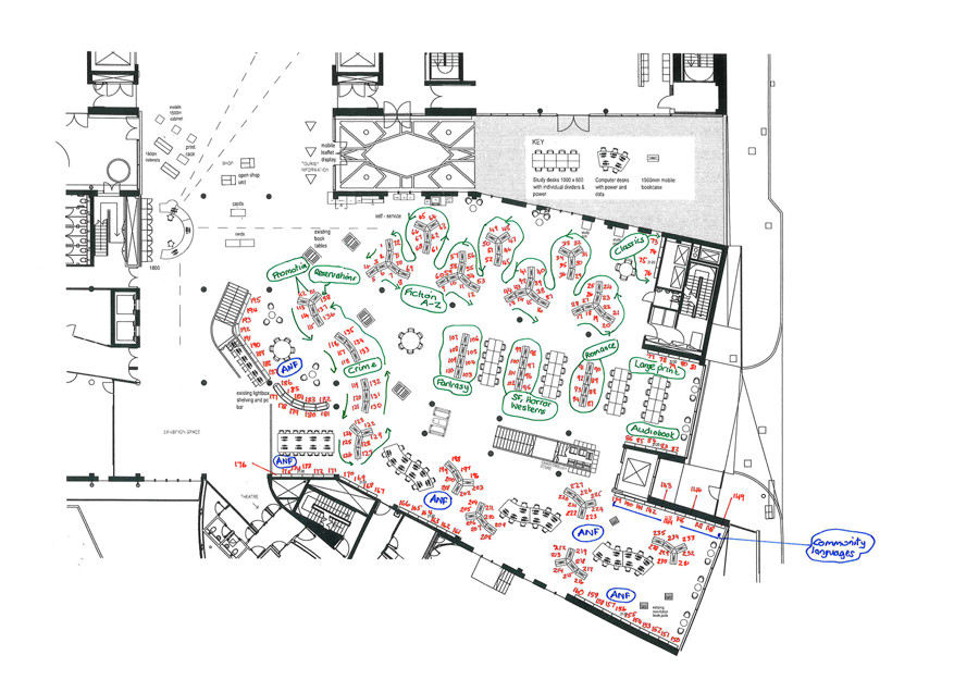
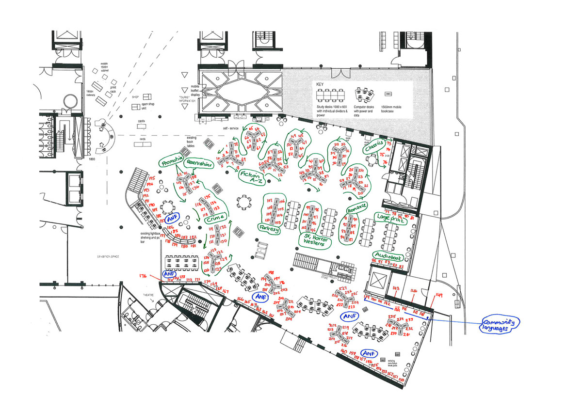
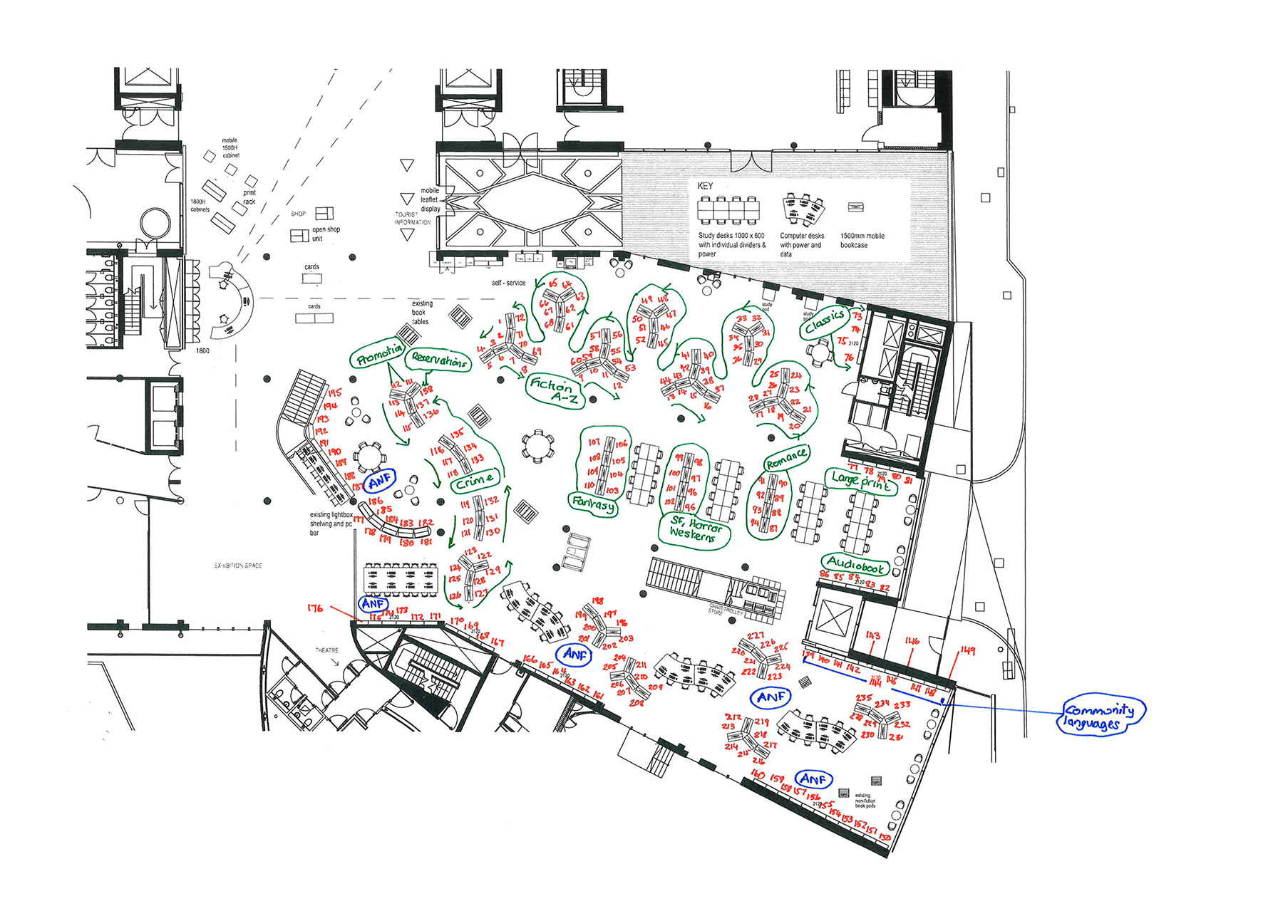
We used colours and types of furniture to make the key zones very visible without having to think about it. Fuchsia is used for the fiction A-Z sequence; glacier blue with white for the study area and genre fiction; seville orange with a rich grained oak for the computer area. Bold check fabrics in matching shades are co-ordinated in each section.

When you stand looking in, the computer desks at the right are curved in dark oak while the byod desks are straight in glacier blue and white. The shelving in the middle section is straight like the desks. The main fiction browsing area to the left has dynamic propeller shapes to keep customers bouncing on from one bookcase to another.

Open sightlines and lower mid-floor furniture help staff to see what is going on. There are no hidden corners or dead ends. Even the meeting pod faces out to the direction of traffic; there is privacy but not so much that it can be abused.

Shelving, especially when full of books, is a great sound absorber so we have placed shelving between the desks to help keep noise down. People naturally talk more quietly in smaller spaces. Where there are 30 desks all together, everyone has to raise their volume just to be heard over the people on the adjacent table, just like in a restaurant.

This layout approach works well with the original architectural design of 3 radiating spines. Layouts which work with the building and not against it are experienced as calmer as well as clearer and more logical. Sightlines through to the windows also raise the mood.

Detailed stock planning and merchandising

Oldham Library managers and staff have a great approach to managing the stock into the available space and working towards performance and not storage. Opening the Book worked in detail with the library team to plan how every bookcase would be used. Below are two stages in the process. The details kept changing right up to the library opening! Because the bookcases are mobile, and the shelves and merchandising acrylics are all interchangeable, this layout can easily be changed in the future to adjust to new needs.

This project was supported by the Arts Council England Libraries Improvement Fund.

Library

Library layout, wayfinding and colour zones

Gallery Oldham Shop

Shop and Tourist Information

More Case Studies

Looking down on Thame Library interior
Thame Library

The first new library built in the County for 20 years meant expectations were high at Thame for the library service and politicians as well as the local community.

Nottingham Trent University IT
Nottingham Trent University

The 4th floor of Boots Library is the most heavily used computer space in the university. The brief was to raise the quality of the student experience while maintaining the required number of computers and supporting 24/7 opening.

Seating area, Risca Palace Library
Risca Palace Library

The new Library and Customer Service Centre at Risca is built as a modern extension behind the restored façade of the old Palace Cinema which had been derelict for many years.

Looking down on Redbridge Library
Redbridge Central Library

Opening the Book was contracted to deliver an interior design which made the space lighter and brighter, implemented a successful transition from staff-led counter service to self-service via RFID and improved the customer experience for over 500,000 people visiting the library each year.

Attractive shelving
Southwater One Library

Opening the Book was first appointed by Mace to work with the architects, structural engineers, project managers, landscape architects, mechanical and electrical designers at Stages A-E of the planned new building.

Tables and shelving
Kingham Hill School

Transforming the old chapel in a 19th century school into a contemporary, practical library was an exciting challenge for our design team.

Werneth High School Library
Werneth High School

Werneth School in Stockport moved to a new purpose-built home on the school site. How could all the successful library activities be fitted into a smaller space?

Meeting area
Lichfield Library at St Mary’s Centre

Opening the Book first visited St Mary’s Church, Lichfield, in 2016 to consider the feasibility of the library being part of a larger refurbishment project.

Leeds City Council Story Buses
Leeds City Council Story Buses

This was a first for Opening the Book and gave us an opportunity to explore how we could bring the same aesthetic of integrating books and play that we bring to our public library projects into a very challenging, much more compact environment.

Gateshead Central Library - MakerPlace
Gateshead Central Library MakerPlace

At Gateshead, Opening the Book created a successful MakerPlace in their existing Sound Gallery. 

Public access computers
Gateshead Archive

Opening the Book refurbished Gateshead Central Lending Library, including children’s and young adult areas, in 2009 so we were delighted to return to complete the work with a transformation of the computer and reference areas into the new Gateshead Archive.

Llanrwst Library
Llanrwst Library Glasdir

Conwy CBC had an opportunity to provide a new community hub for rural Conwy when the building which had been the Glasdir Business and Conference Centre in Llanrwst became available.  

Danum Gallery:Library:Museum

Opening the Book was excited to work with Doncaster MBC in creating the new Danum centre, bringing together the Central Library, the Museum and the Art Gallery to one site. 

Birtley: Integrating digital with print
Birtley and Blaydon Libraries

A complete makeover for two busy libraries, including fun reading hideout features for children.

Uwchaled Library, Cerrigydrudion
The smallest library in Wales?

Fitting everything into small spaces while keeping flexibility for community use is key to small library design.

View from entrance
Sale Library Trafford

Opening the Book brought the library from the back to take centre stage in the atrium. Loans increased by over 20% in the first 11 weeks.