For enquiries please call 01977 602188

City Central Library, Stoke-on-Trent

Library Design Case Study

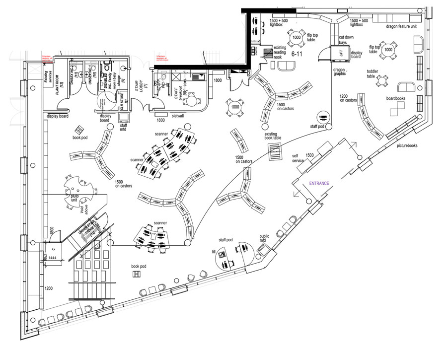
One and Two Smithfield are part of a major development in Hanley, Stoke-on-Trent involving offices, retail, hotel and public realm works. The main Stoke-on-Trent Council offices are here, together with their busiest customer centre. BHB Architects were appointed to create a new library space in a good location at the front of Two Smithfield in order to move the Central Library from its over-large 1970s’ building in Bethesda Street.

Opening the Book were brought in as consultants from the earliest concept development and worked with the architects, project managers, councillors and library managers in one continuous process right through to delivery. And it was a process – the challenge of moving a central library from a no-longer-fit-for-purpose space into a much tighter footprint took creativity and compromise from everyone involved. Options to connect to the public area of the council services offer next door were explored, including a shared café area, but had to be rethought to stay within a fixed budget. Locations for back office functions and an accessible toilet were juggled and the late addition of a front porch was then moved internal to save on cost. We eventually installed on Version 21 of our layout drawings!

The building has an entrance at street level to the ground floor at the front and an entrance up a steep rise at the side to street level at the next floor. Unless library users were to move round the outside in all weathers, that meant internal stairs and lift must be added – space-hungry elements in a small footprint. BHB worked through lots of options to the final version where a lovely curved mezzanine expanded the capacity at the upper level and the attractive staircase doubles as seating. Opening the Book worked with the library team to maximise computer, bring-your-own-device and book capacity as each version evolved.

The children’s library was a vital component and we were fortunate that Stoke-on-Trent Libraries had already developed a relationship with children’s illustrator, Kate Leake. Kate’s dragon had become the children’s library brand, used on everything from library cards to event posters. Kate and the library team worked with us to adapt the flying dragon to appear on the outside and inside of our hideout feature. Plus there is a wonderful upright dragon announcing the children’s area which makes a feature of the utilitarian lift-shaft. We were delighted that Kate became the city’s first ever Creativity Laureate in January 2026.

The dragon design also looks good on the children’s bookcase signage. For the adult signage, we developed a style which references the brick detail of the Smithfield building and the bottle kilns emblematic of the Potteries.

This is one of the most compact, clever designs we have been involved with and we are proud of the way it still feels spacious while fitting so much in.

More Case Studies

Looking down on Thame Library interior
Thame Library

The first new library built in the County for 20 years meant expectations were high at Thame for the library service and politicians as well as the local community.

Nottingham Trent University IT
Nottingham Trent University

The 4th floor of Boots Library is the most heavily used computer space in the university. The brief was to raise the quality of the student experience while maintaining the required number of computers and supporting 24/7 opening.

Seating area, Risca Palace Library
Risca Palace Library

The new Library and Customer Service Centre at Risca is built as a modern extension behind the restored façade of the old Palace Cinema which had been derelict for many years.

Looking down on Redbridge Library
Redbridge Central Library

Opening the Book was contracted to deliver an interior design which made the space lighter and brighter, implemented a successful transition from staff-led counter service to self-service via RFID and improved the customer experience for over 500,000 people visiting the library each year.

Attractive shelving
Southwater One Library

Opening the Book was first appointed by Mace to work with the architects, structural engineers, project managers, landscape architects, mechanical and electrical designers at Stages A-E of the planned new building.

Tables and shelving
Kingham Hill School

Transforming the old chapel in a 19th century school into a contemporary, practical library was an exciting challenge for our design team.

Werneth High School Library
Werneth High School

Werneth School in Stockport moved to a new purpose-built home on the school site. How could all the successful library activities be fitted into a smaller space?

Meeting area
Lichfield Library at St Mary’s Centre

Opening the Book first visited St Mary’s Church, Lichfield, in 2016 to consider the feasibility of the library being part of a larger refurbishment project.

Leeds City Council Story Buses
Leeds City Council Story Buses

This was a first for Opening the Book and gave us an opportunity to explore how we could bring the same aesthetic of integrating books and play that we bring to our public library projects into a very challenging, much more compact environment.

Gateshead Central Library - MakerPlace
Gateshead Central Library MakerPlace

At Gateshead, Opening the Book created a successful MakerPlace in their existing Sound Gallery. 

Public access computers
Gateshead Archive

Opening the Book refurbished Gateshead Central Lending Library, including children’s and young adult areas, in 2009 so we were delighted to return to complete the work with a transformation of the computer and reference areas into the new Gateshead Archive.

Llanrwst Library
Llanrwst Library Glasdir

Conwy CBC had an opportunity to provide a new community hub for rural Conwy when the building which had been the Glasdir Business and Conference Centre in Llanrwst became available.  

Danum Gallery:Library:Museum

Opening the Book was excited to work with Doncaster MBC in creating the new Danum centre, bringing together the Central Library, the Museum and the Art Gallery to one site. 

View from library entrance
Tunstall Library

Opening the Book designed a new library to fit into the ballroom of the beautifully restored Town Hall.

Baroque concert - photo credit Leeds City Council
Music Library and BIPC Leeds

Opening the Book is helping to transform the Grade II* listed Central Library with designs to support contemporary services in a historic building.

Birtley: Integrating digital with print
Birtley & Blaydon Libraries

A complete makeover for two busy libraries, including fun reading hideout features for children.

Uwchaled Library, Cerrigydrudion
The smallest library in Wales?

Fitting everything into small spaces while keeping flexibility for community use is key to small library design.

Foyer  with shop
Oldham Library & Gallery Shop

A complex project in a beautiful and busy building to bring a complete refresh and easier navigation.

View from entrance
Sale Library Trafford

Opening the Book brought the library from the back to take centre stage in the atrium. Loans increased by over 20% in the first 11 weeks.