For enquiries please call 01977 602188

The smallest library in Wales?

Library Design Case Study

Three small libraries in North Wales — big design challenges, passionate volunteers and proof that every decision matters when space is limited.

Is Uwchaled Library in Cerrigydrudion the smallest library in Wales? There’s been a library in this village for more than 60 years and it plays a vital role in this small community of less than 1500 people, 70% of them Welsh-speaking.

You might think a small library is easier to design than a large one – you’d be wrong! Fitting everything into a small space, while keeping a feeling of openness, is a real challenge. And then there’s the fact that a vital space in a small community will need to double up for meetings of all kinds so it must be flexible. Plus if this library is important to the community, and run by volunteers, you will meet passionate people with ambitious desires and aspirations to get the best from what is likely to be a once-in-a lifetime opportunity to create the library of their dreams.

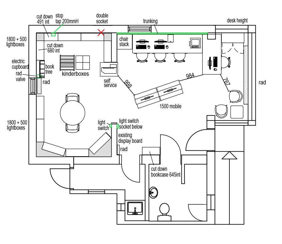
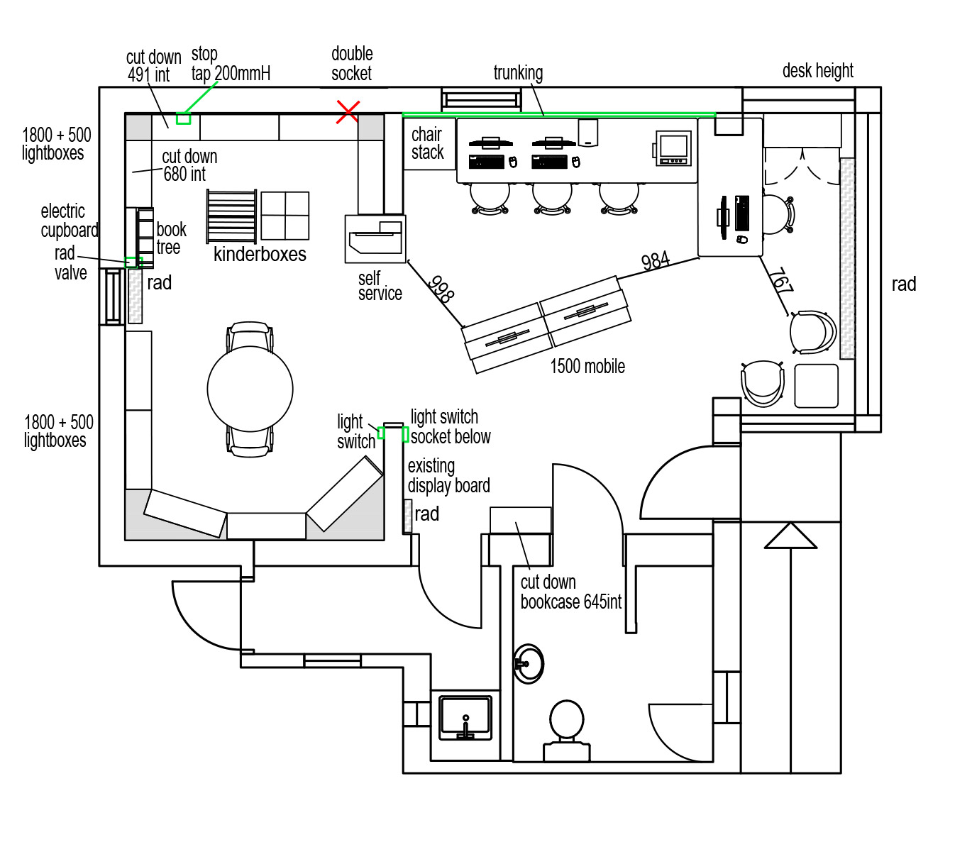
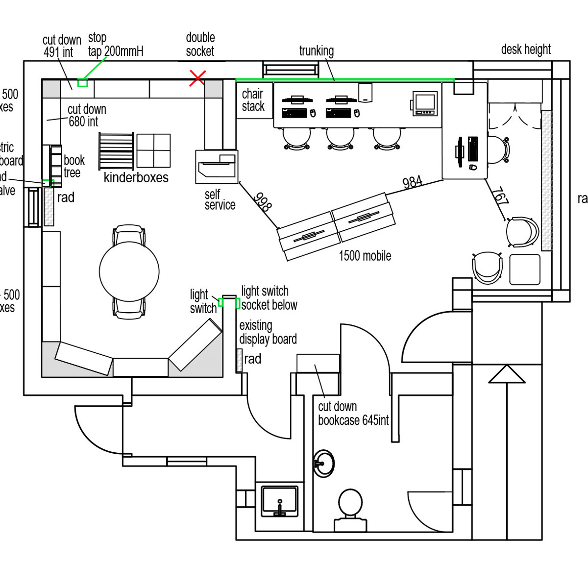
If we weren’t aware of all the above already, winning the tender to refurbish three small libraries in North Wales gave us the proof. We met with each of the volunteer committees on different occasions and discussed in detail what they wanted. We visited sites and discussed the building works planned and how these might link with the interior design. We planned the stock, IT services and operation with staff from Conwy Borough County Council who manage the library service. We discussed furniture and colour choices in detail with trustees and users. Small these libraries may be, but every decision was important.

The result when the libraries re-opened after Opening the Book’s fitout made this one of the most rewarding projects we have ever worked on. How important are small libraries? This project in North Wales proved they really matter.

Here are reactions from the key people involved.

We're absolutely delighted with our refurbished Community Library in Llanfairfechan. The space seems so much bigger than before, and the new furniture showcases the library stock so much more effectively.

Library users have been unanimous in their appreciation. Footfall is well above previous levels. Meanwhile, the Friends of the Library - who are responsible for the running costs of the building - can take advantage of the flexible design to rearrange the space as necessary for community groups who want to hire the library for their activities. We're all winners!

Huw Lloyd Jones
Project Manager, New Chapters and Chair, Friends of Llanfairfechan Community Library

Opening The Book were a pleasure to work with, their expertise and knowledge both in the design and fitting were second to none.

We were very pleased with the colours that we chose, the library looks very bright and cheerful with lots of reflective light from the muted colour scheme. Thank you once again from the trustees and very happy customers.

Morris F Jones
Chair of Friends of Kinmel Bay Community Library

Roedd yn bleser cael cydweithio efo Opening the Book. Mae’r silffoedd a’r dodrefn o safon uchel ac mae’r gwaith wedi trawsnewid y llyfrgell bychan yma gan wneud y gorau o bob rhan o’r adeilad. Mae’n ofod cynnes, modern a chroesawgar sy’n cynnig hafan i bobl o bob oed er mwyn mwynhau darllen a chymdeithasu.

Working with Opening the Book was a pleasure from start to finish. The fittings are of a high standard and have completely transformed the library, utilising all parts of the space available. It is now a warm, modern, welcoming environment offering a haven for residents, young and old, to enjoy reading and socialising in comfort.

Cynghorydd/Councillor Gwennol Ellis
Uwchaled Library, Cerrigydrudion

And also from the library staff:

I am sincerely grateful to you all for your support, our transformed community libraries and enthused staff following training. Conwy Library service is delighted to have such positive feedback from library customers – old and new - to the professionally designed libraries at Uwchaled, Llanfairfechan and Kinmel Bay.

Owing to the design features incorporated by Opening the Book and smart furnishings selected in conjunction with representatives from the respective Community Library Groups customers and staff have been amazed at how much bigger these libraries now seem. On re-opening we’ve had excellent loans of library stock as they offer such a browsable and enticing space to choose books.

Sharon Morgan
Prif Lyfrgellydd a Rheolwr Gwybodaeth / Principal Librarian and Information Manager / Cyngor Bwrdeisdref Sirol CONWY County Borough Council

Training in merchandising pays off even in a library with only one display pod:

I just wanted to let you know that when we were putting the books back in Hwb Uwchaled library, I used the idea you showed us at Kinmel Bay of drawing out the narrative non-fiction, joke books, poetry books and Horrible Histories onto their own shelf at kids’ eye height in a zig zag. The local primary school is here for a first-look opening and the boys have devoured that shelf!! They’ve been reading them out loud to each other and to us and to teachers.

Everyone’s commented on how lovely it is – that it’s brighter and seems bigger, and that the Welsh books are much easier to browse, rather than being in the corner where they were before. It’s all a-buzz here, totally lovely.

Seren Medi Ashton
Rheolwr Llyfrgell / Library Manager

The project “New Chapters” was realised by the Community Library Network in Conwy, a collaborative bid to the UK Government, via the UK Shared Prosperity Fund (UKSPF), with Conwy County Borough Council Community Regeneration Key Fund. Library furnishing and fittings were fully replaced in all libraries, and significant building improvements were also completed as part of this project.

More Case Studies

Looking down on Thame Library interior
Thame Library

The first new library built in the County for 20 years meant expectations were high at Thame for the library service and politicians as well as the local community.

Nottingham Trent University IT
Nottingham Trent University

The 4th floor of Boots Library is the most heavily used computer space in the university. The brief was to raise the quality of the student experience while maintaining the required number of computers and supporting 24/7 opening.

Seating area, Risca Palace Library
Risca Palace Library

The new Library and Customer Service Centre at Risca is built as a modern extension behind the restored façade of the old Palace Cinema which had been derelict for many years.

Looking down on Redbridge Library
Redbridge Central Library

Opening the Book was contracted to deliver an interior design which made the space lighter and brighter, implemented a successful transition from staff-led counter service to self-service via RFID and improved the customer experience for over 500,000 people visiting the library each year.

Attractive shelving
Southwater One Library

Opening the Book was first appointed by Mace to work with the architects, structural engineers, project managers, landscape architects, mechanical and electrical designers at Stages A-E of the planned new building.

Tables and shelving
Kingham Hill School

Transforming the old chapel in a 19th century school into a contemporary, practical library was an exciting challenge for our design team.

Werneth High School Library
Werneth High School

Werneth School in Stockport moved to a new purpose-built home on the school site. How could all the successful library activities be fitted into a smaller space?

Meeting area
Lichfield Library at St Mary’s Centre

Opening the Book first visited St Mary’s Church, Lichfield, in 2016 to consider the feasibility of the library being part of a larger refurbishment project.

Leeds City Council Story Buses
Leeds City Council Story Buses

This was a first for Opening the Book and gave us an opportunity to explore how we could bring the same aesthetic of integrating books and play that we bring to our public library projects into a very challenging, much more compact environment.

Gateshead Central Library - MakerPlace
Gateshead Central Library MakerPlace

At Gateshead, Opening the Book created a successful MakerPlace in their existing Sound Gallery. 

Public access computers
Gateshead Archive

Opening the Book refurbished Gateshead Central Lending Library, including children’s and young adult areas, in 2009 so we were delighted to return to complete the work with a transformation of the computer and reference areas into the new Gateshead Archive.

Llanrwst Library
Llanrwst Library Glasdir

Conwy CBC had an opportunity to provide a new community hub for rural Conwy when the building which had been the Glasdir Business and Conference Centre in Llanrwst became available.  

Danum Gallery:Library:Museum

Opening the Book was excited to work with Doncaster MBC in creating the new Danum centre, bringing together the Central Library, the Museum and the Art Gallery to one site. 

Birtley: Integrating digital with print
Birtley and Blaydon Libraries

A complete makeover for two busy libraries, including fun reading hideout features for children.

Foyer  with shop
Oldham Library and Gallery Shop

A complex project in a beautiful and busy building to bring a complete refresh and easier navigation.

View from entrance
Sale Library Trafford

Opening the Book brought the library from the back to take centre stage in the atrium. Loans increased by over 20% in the first 11 weeks.